
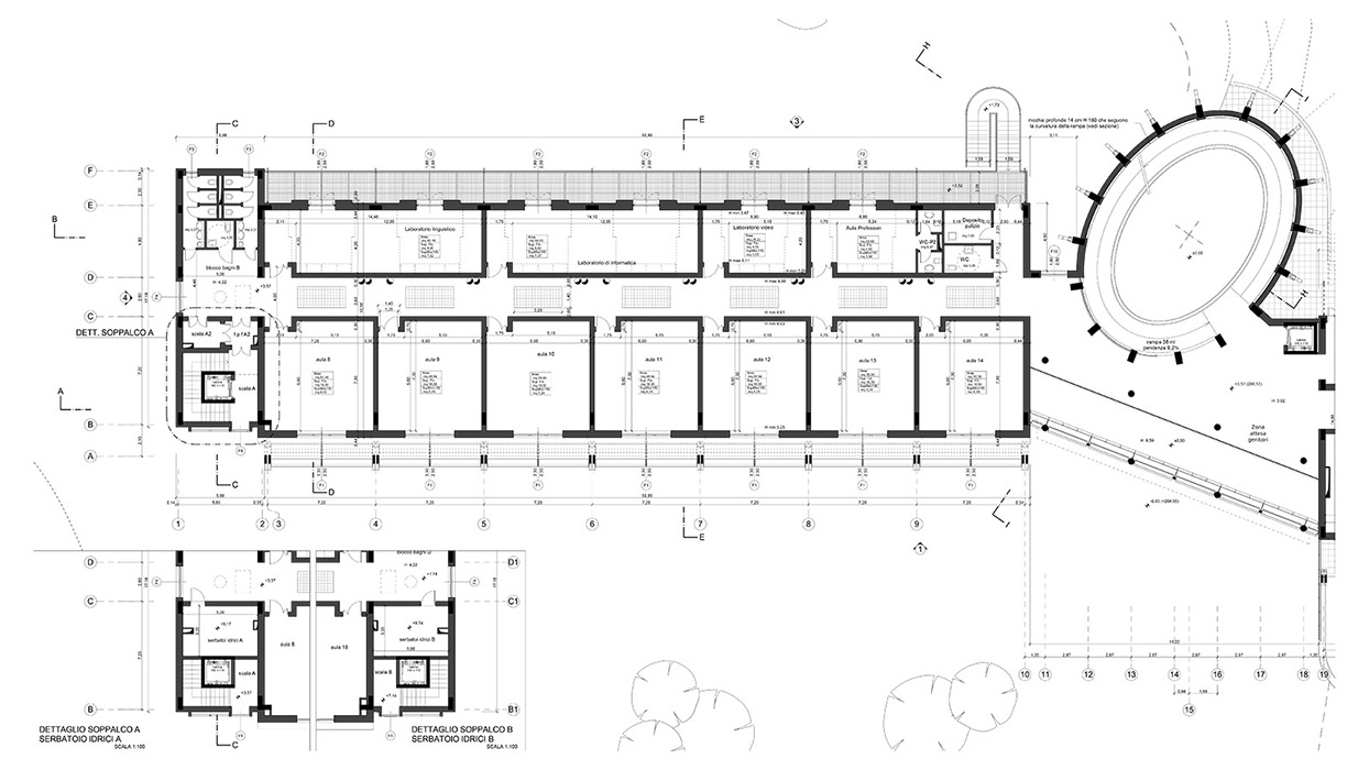
Scuola secondaria Rossellini di Formello (Roma)
- PROGETTO: Studio Spagnolo Roccheggiani
- COLLABORATORI: Architetto Mario Sacco (ArchiRADAR)
Progetto realizzato con il supporto di un modello virtuale con metodologia BIM.
Il modello è stato utilizzato per la redazione di tutti gli elaborati, per il calcolo delle quantità, per la verifica dei nodi complessi, per la simulazione fotorealistica.
Il modello virtuale è stato adottato sia per la parte edilizia che per una prima bozza di progetto strutturale; l'interoperabilità, garantita dallo scambio di modelli virtuali con chi si occupava delle strutture, ha consentito un aggiornamento continuo dell'architettonico in base ai requisiti dello strutturale.








